高温蒸汽电动调节阀
·概况
YM840系列智能电动执行器与调节阀体构成电动调节阀,是工业过程测量和控制的系统中执行调节机构。可以广泛应用于石油、化工、水处理、船舶、造纸、电站、供热、楼宇自控、轻工等各行业中。
·产品特点
1.执行器选用压铸铝支架及ABS外壳;
2.阀体与执行器灵活组合,可适应不同压差的需求;
3.执行器选用同步电机,有限位断电保护功能。能在停顿的情况下产生稳定的扭力使阀门可以静止在任何位置;
4.正反转控制:可根据需要设定正反转,以匹配不同的阀体;
5.控制信号:智能型
·产品参数
执行器型号:VQ53-YM840 动作/控制:可逆,智能型
电源电压:AC24V 50~60Hz 电机形式:交流同步可逆电机
控制信号:DC 0-10V/DC 4-20mA 反馈信号:DC 0-10V/DC 4-20mA
功率消耗:30VA 最大行程:45mm
实际输出力:4000N 防护等级:IP44
环境温度:-15~55℃ 工作湿度:10%~90%PH结露
阀体规格:DN15~DN200 公称压力:1.6MPa
流体温度:-20℃~220℃ 适用介质:冷/热水、蒸汽等
阀体材质:球墨铸铁 阀芯材质:不锈钢 阀杆材质:不锈钢

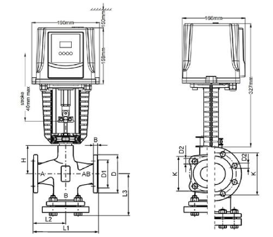
·产品尺寸




客服1